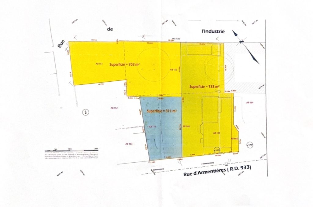
En exclusivité chez Le Chat Immobilier, découvrez ce magnifique terrain de 703 m2, partiellement clos par un mur de briques, offrant un cadre agréable et plein de charme. Un lieu parfait pour imaginer la maison de vos rêves dans un environnement calme et accueillant.
Pour plus de senseignements, merci de nous contacter!
– Annonce rédigée et publiée par un Agent Mandataire –
Les informations sur les risques auxquels ce bien est exposé sont disponibles sur le site Géorisques https://www.georisques.gouv.fr